Address
-
Address: 1519 4th St. NW (Islamic Way)
-
Zip/Postal Code: 20001
Description
The Expansion Project Existing building and its significance for the community.
Current building reflects features of prevailing modern architecture in 1960’s in Washington DC.
With its vaulted roof visible from inside and out, 40’ spanning exposed laminated timber arches and tension cables, the building clearly expresses its structural system; a feature many architects would appreciate. Not only for the architects but also for the Nation’s Mosque community does the existing building have significance. It is considered as a physical edifice representing at least two of the milestones of the development of the community over the 20th century as described at Section 2 of this booklet.
The original construction of the building in 1959 is a manifestation of the community to build themselves a permanent location. Probably the second largest development since then, if not the most important one, has been in 1975 when the community with WD Muhammad’s guidance moved into the mainstream Islam. With this change, the mihrab direction of the mosque has been fine tuned to face true kible direction. Today, when someone walks into Masjeed Muhammad, the tilted mihrab direction from the rectilinear walls of the building reveals this history.
Growing future plans and need for space
The Nation’s Mosque community has been constantly ripening the shift established by W D Muhammad within the existing built environment Lately though, particularly with Imam Talib Sharief’s leadership, the growing activities of the community necessitated an expansion more than ever before.
The need for new classrooms, new multipurpose hall, new musalla and wudu stations and new office space for the staff has become the single most important hindrance for the community to make the next leap. At this juncture, the largest building initiative for the community in the last 55 years has been started.
The Program
The Masjeed Muhammad building currently sit’s in its lot as a self standing building unlike the typical townhouses at the adjacent lots. There is a side yard on each side of the building.
The one on the north together with the three other lots owned by the mosque is used as surface parking.
The side yard on the south, at this context, is the best way to expand the building.
Washington DC zoning regulations allows maximum 3 story building up to 60’ height for religious building at this neighborhood. The project makes best use of this allowed envelope.
In addition to the expansion project, the existing building will be stripped down to its structure and completely renovated.New plumbing, sprinkler, electrical, audio visual, security, lighting and HVAC systems will be installed. The metal roofing will be renewed with new skylights. New windows will be opened at musalla level. Existing basement level will be digged and underpinned by 4 feet.
From lower to upper levels the new program and scope of work is as follows:
Basement 2: This level will be used for much needed storage and mechanical space.
This will free up space for other uses at the upper levels.
Basement 1: Current fellowship hall is very inadequate in size to serve the needs of the community.
Next to the kitchen, this area is used as a cafeteria, meeting place for different occasions, a lobby/lounge and even as a classroom. With the new design this level will be underpinned to get a ceiling height that fits the ambitious programmatic goals. The new musalla access and circulation also will provide a much more dignified fellowship hall which will serve as an independent area. New restroom and wudu stations will improve the existing ones both in quantity and quality.
First Floor: Musalla area will be enlarged towards the new wing. Finishes will be renewed.
Interior lighting will be renewed to complement the new interior design. New accessible entrance from the street will be provided.This will serve as the main entrance to the basement and the wudu stations in addition to the elevator access to the entire building.
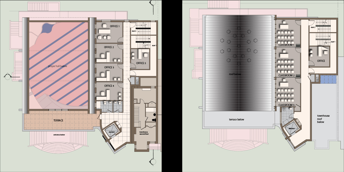
Second Floor: This level is assigned for office use for the imam, accounting and other management personnel. A terrace space will also be created at the top of the existing building roof accessible from the new second floor.
Third Floor: Two classrooms at this level will serve for the educational activities. The movable partition between classrooms can be opened to create a one large space as needed. Two restrooms are also provided at the same level.
Rooftop Terrace: The roof top terrace will serve for variety of purposes.
Being in the close proximity to the city center, it will have a beautiful view of the Washington Capital building.
Building Massing
Filling in the gap between a 1960’s modern mosque building and a more than 100 years old residential townhouse, the expansion project poses a serious challenge from the design point of view.
Minaret as the liaison between the existing building and the streetscape
Complementing the existing building:
The expansion is designed to complement the existing building. One story existing building with a 40’ wide barrel vault has a stout proportion. The three story new expansion would definitely be taller than that, however this height should not overwhelm it. Therefore a more slender vertical element, a minaret, is introduced at the front. With this move the bulk of the expansion mass became less intrusive. From sculptural point of view, the slender ratio of the minaret counterbalances the stout proportion of the existing building.
Connecting to the streetscape:
From another perspective the minaret, can be perceived as an elegant end piece for the repeating rhythm of the townhouses on 4th street. Architects call this a “head and tail” or “bookend” parti.
Minaret as a form, minaret as a function The minaret which has been historically built as a high standing area to call for the prayer, became more of a symbolic element with the development of the microphone and the speaker systems. When the community brought up their request for a minaret, the design team incorporated it into the new expansion not just as a figure but also as a functional element housing the elevator shaft. The new minaret at the Nation’s Mosque will physically be elevating people from lower level to the top; evoking the spiritual elevation every human being is expected to go through.
Kible
Typical of many buildings in the city, the original Masjeed Muhammad building was laid out according to the famous cartesian coordinate system of the Washington DC city plan. The kible direction, which is 55 degrees east of north, has no reference from the outside of the existing building. The expansion project has also been considered as an opportunity to handle this issue. The minaret is tilted to face the perfect kible direction. The new entrance from the sidewalk in the same orientation further accentuates the kible direction.
Prayer Hall interior design
At the main level, the expansion is considered not only as a means enlarge the prayer hall but also as an opportunity to bring a new concept and a vision for it. The main challenge for the prayer hall interior design is the resolution of the tension between the kible direction and the exterior shell of the existing building. However this challenge is embraced as a richness of the community and used as an opportunity for the new design concept. In order to mediate this conflict, the interior walls of the prayer hall are completely isolated from the exterior walls as a second layer. The new geometry is intended to create its own focal point centered on the kible axis. A set of circular wall system is utilized to make best use of the space, to create its own character and to organize the circulation outside.
Rose at the Musalla
The overlapping radial interior wall panels evoke the petals of a rose, symbol of our beloved Prophet (SAV) at the “Masjeed Muhammad”. The swirling pattern of the petals also reminds us the fact that everything in the universe is in motion.
Part of the American community while keeping their hearts toward Allah
The building shell aligning with the street while the interior of the musalla having its reference from kible makes another spiritual analogy. Being the oldest indigenous muslim community, the members of the Nation’s Mosque are strongly connected with broader American community. At the same time, as muslims, in their hearts they turn to nothing but Allah (cc). Looking at it from this perspective, seemingly conflicting nature of the “shell” and the “core” of the mosque maybe just the right approach for this indigenous muslim community in the United States of America.
Women’s section
At the Nation’s Mosque community women are very much encouraged to participate in the community activities. At the Friday and Eid prayers, women constitute a substantial portion of the congregation, praying at the back inside the same big space. This aspect has been a role model for many other muslim communities in the North America. In the new design of the prayer hall women’s section is placed at the center just across mihrab with a private access door. Similarly men’s doors are conveniently placed between the “petals of the rose” without interrupting the internal flow.
Details
Updated on October 5, 2025 at 2:23 am-
Property Status Project Mgmt




